對開式無壓風門知識,對開式無壓風門圖紙
作者: 礦用風門來源: 互聯網
對開式無壓風門采用鋼絲繩配合獨立吊桶自重回復風門的方式進行閉鎖,實現風門自動關閉,限制兩道風門同時打開的功能
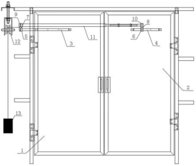
對開式無壓風門的結構:包括左風門和右風門,左風門和右風門上分別安裝有水平的左支架和右支架,左支架和右支架分別和左風門和右風門平行設置且間隔一定距離,左支架和右支架上分別固定有左下銷軸座和右下銷軸座,左銷軸和右銷軸的下端分別插入到左下銷軸座和右下銷軸座的銷軸孔內,左銷軸和右銷軸的上端分別插入到左上銷軸座和右上銷軸座的銷軸孔內,右上銷軸座和連桿的首端連接,左上銷軸座和連桿的尾端連接,左下銷軸座和左上銷軸座位于左風門的左側。使用時,員工拉左風門或推右風門,另一風門在連桿的作用下被推開,只需要一個人便可將風門打開。
對開風門,左風門的左端設置有滑輪,滑輪上纏繞有鋼絲繩,鋼絲繩的一端連接有配重,另一端和左銷軸的中端連接。在銷軸上通過滑輪系有配重,可根據風量大小,自行調節配重的重量,保證行人通過后風門可完全關閉。
對開風門,左風門和右風門由鋼體結構焊接制作而成。

對開式無壓風門特點:全部由鋼體結構焊接制作而成,循環使用率為100%,可節省大量的木制風門的加工和維修費用;方便了工人的出行,節約了大量的人力成本。通過兩個配重件的自重實現兩道風門的獨立閉鎖,通過限位塊確保當一道風門輕微開啟時就能實現另一道風門完全閉鎖,避免了兩道風門的同時開啟,且與兩道風門對應連接的鋼絲繩始終處于張緊狀態,杜絕了風流短路,保證行人安全,減少了漏風量,且該裝置安裝簡便,不改變現有設施狀況,具有極高的現場應用價值及經濟價值。