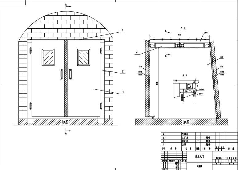
無壓風門配件組成
作者: 礦用風門來源: 互聯網
無壓風門配件組成:風門門體,門梁,門框,門扇,地梁,驅動臂,連桿,配重,機械閉鎖,安裝配件

兩扇風門分別向兩個方向開啟,通過連桿和支撐臂實現聯動,改變連桿長度可重以調整風門的嚴密度。如結構圖所示,兩扇門A、B通過支撐臂及連桿c連成一個整體。當A向前運動時,另一扇門B在連桿的帶動下向后運動,這樣打開風門的阻力F只有啟動風門的氣動力和重錘圖1無壓風門結構圖 的重力,因為風壓差作用在風門AE的力等于作用在風門B上的力,而兩力通過連桿相互抵消,故稱為無壓風門。