礦用風門閉鎖裝置的由來和原理
作者: 礦用風門來源: 互聯網
礦用風門閉鎖裝置的由來
礦業中,需要通過人員和車輛的巷道中設置的隔斷風流的門被稱為風門。同一個巷道中的兩道風門不能同時開啟,即其中的一道風門開啟的時候,另一道風門必須是關閉狀態,只有當被開啟的風門關閉的時候,另一道成關閉狀態的風門才能夠被開啟,這被稱為風門連鎖。實現兩道風門連鎖的裝置稱為風門閉鎖裝置。

現有的礦用平衡風門機械閉鎖裝置中,只有當兩道風門中的一道完全開啟時另一道門才被拉緊,如果兩道風門中的一道只有部分開啟,另一道門也可開啟一部分,不能實現完全的閉鎖。此外,風門閉鎖停風時,閉鎖失靈,需要提供外部動力。
礦用風門閉鎖裝置的結構
解決了現有技術中風門不能完全閉鎖和風動閉鎖需外部提供動力的問題。
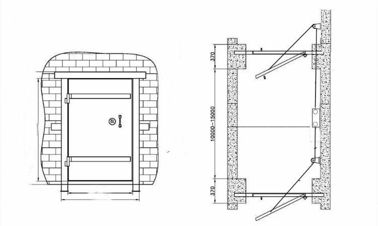
礦用風門閉鎖裝置,在一道風門上的向外拉的拉門和相鄰的另一道風門上向外推的推門上作用一個閉鎖機構,所述閉鎖機構包括:雙軌道、一對傳動管、重錘、鋼絲繩、連桿和一對擋板,一對傳動管分別放置在雙軌道內;鋼絲繩的一端固定在所述拉門上,另一端依次穿過一個傳動管、重錘、另一個傳動管后固定在所述推門上,且鋼絲繩分別與一對傳動管固接;一對擋板的頂部分別樞接在連桿的兩端,中部分別樞接在雙軌道的兩端,一傳動管通過一個擋板被拉出雙軌道時,另一傳動管被另一個擋板限制在雙軌道內。
礦用風門閉鎖裝置具體原理:
風門閉鎖裝置一道風門A門上的向外拉的拉門和相鄰的另一道風門B門上的向外推的推門上作用一個閉鎖機構,該閉鎖機構包括:雙軌道1、一對傳動管2、重錘3、鋼絲繩4、連桿5和一對擋板6,一對傳動管2分別放置在雙軌道1內;鋼絲繩4的一端固定在A門的拉門上,另一端依次穿過一個傳動管、重錘、另一個傳動管后固定在B門的推門上,鋼絲繩分別與一對傳動管固接;一對擋板6的頂部分別樞接在連桿5的兩端,中部分別樞接在雙軌道1的兩端。
當A門的拉門向外拉開時,鋼絲繩拉動一個傳動管向外推靠近A門側的擋板,該擋板向外側轉動一定角度,同時通過樞接的連桿帶動另一側擋板向內側轉動,將另一個傳動管阻擋在雙軌道內;當向外推動B門上的推門時,由于另一個傳動管沿著推門推動的方向被另一側擋板阻擋在雙軌道內,導致無法拉動鋼絲繩,從而實現推門閉鎖。B門上的拉門和推門互鎖,當B門上的推門不開時,B門上的拉門也無法打開,實現B門在A門開啟時不需要外力的完全閉鎖。當B門的推門向外推開時,鋼絲繩拉動另一個傳動管向外推靠近B門側的擋板,該擋板向外側轉動一定角度,同時通過樞接的連桿帶動另一側擋板向內側轉動,將一個傳動管阻擋在雙軌道內;當向外拉動A門上的拉門時,由于一個傳動管沿著拉門拉動的方向被另一側擋板阻擋在雙軌道內,導致無法拉動鋼絲繩,從而實現拉門閉鎖。A門上的拉門和推門互鎖,當A門上的拉門不開時,A門上的推門也無法打開,實現A門在B門開啟時不需要外力的完全閉鎖。
任一個傳動管的長度大于拉門或推門轉動90°后鋼絲繩拉動的長度,以使鋼絲繩拉動時,任一個傳動管不會脫離雙軌道,進而實現該閉鎖裝置的自動循環使用,避免人工矯正傳動管的位置。
在上述實施例的基礎上,雙軌道包括長方形的槽體和設置在槽體內的夾板,槽體的相對的長邊的兩端為開口端,夾板沿槽體的長邊方向設置在槽體內的中間處,用于將槽體內分割成兩個分別放置一對擋板的軌道;任一個擋板向內側轉動一定角度后抵靠在該夾板上,用以提高一對擋板對傳動管鎖緊的穩定性。由于兩個擋板樞接在連桿的兩端,故而一個擋板向內側轉動的角度和另一個擋板向外側轉動的角度相同。為了使整體結構更加簡便,一個傳動管的遠離拉門的端部和另一個傳動管的遠離推門的端部均設置有至少一個螺栓7,任一個傳動管上的螺栓7將該傳動管與鋼絲繩固接。為了增加鋼絲繩和一對傳動管的固接的穩定性,一個傳動管的遠離拉門的端部和另一個傳動管的遠離推門的端部均設置有并排的兩個螺栓。雙軌道的與一個傳動管的拉動方向相反的端部設置有滑輪,以使穿過該傳動管的鋼絲繩繞經所述滑輪。避免鋼絲繩從松馳狀態至拉緊狀態時,出現的卡繩或斷繩現象。