有的插板風門的上下方的移動行走導向機構通常結構簡單,多是在門板的下方設置滾輪形式的移動行走機構,通過驅動裝置的驅動即可進行風門的關閉和開啟,但是這種傳統的結構,行走笨重,摩擦阻力較大,系統的運行穩定性較差,而且軌道容易積灰,移動時會卡澀;而且現有的插板式風門均采用焊接形式,在生產制造時,一旦定位完畢,即采用電焊形式將相關結構焊死;在后續調試或實際運行過程,往往出現風門變形卡澀的情況。原因在于因制造過程中不可避免的應力或在使用過程中出現的熱變形及相關材料老化導致的。根據實際出現的情況,需要調整門板行走軌跡及門板相對于門座密封面的位置。因為原始設計制造均為焊接形式,且插板式風門的結構較為緊湊,在實際安裝到電廠風道后,維護困難。對于此類問題,一般會更換新門,或整體拆解維修,造成運行成本增加。
因風門正常情況下均為打開狀態,門板在開啟位置會停留很長時間,風道內的介質含塵量(煤灰占大部分)很高,因此風門的軌道及相關行走機構容易積灰,且風道內時常會有水汽。水汽和煤灰混合后即為低標號水泥,會造成門板行走機構卡死。

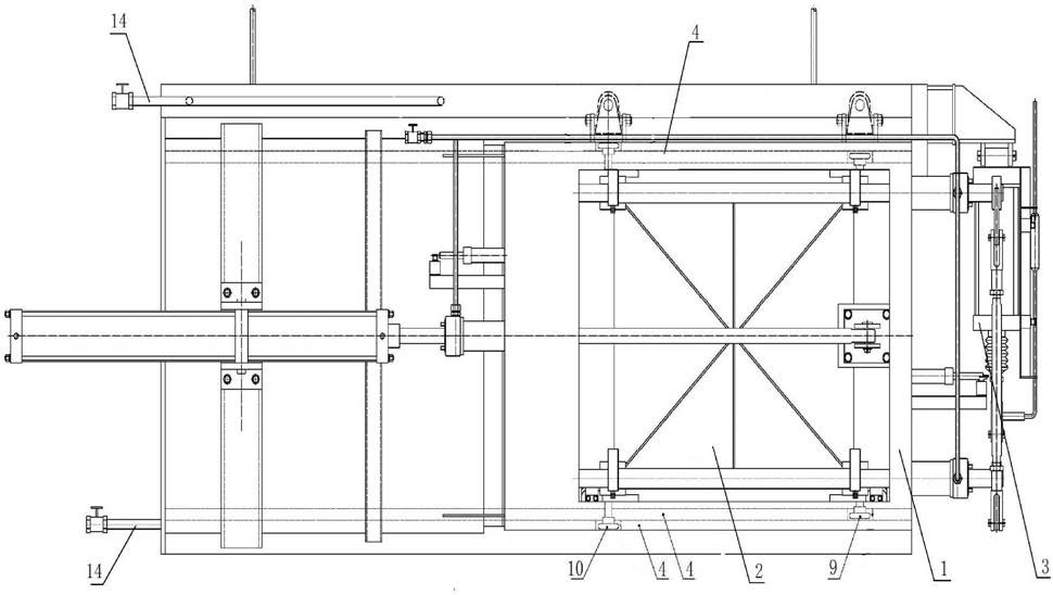
一種插板式風門的可調式行走導向機構,包括門框、安裝在門框上的插板式門板以及用于驅動門板左右關閉和開啟的驅動裝置,驅動裝置驅動門板向右側移動可關閉風門,所述的門板的上方安裝有懸掛式行走導向機構;該懸掛式行走導向機構包括設置在門框上的導向輪軌道、設置在導向軌道上方的行走輪軌道以及安裝在行走輪軌道上的懸掛式行走輪;所述的行走輪軌道和導向軌道均是前后設置有兩道從而構成整體軌道;而所述的懸掛式行走輪則在門板左右側各設置有一組,而每組懸掛式行走輪各設置有兩個,前后兩個相對應的懸掛式行走輪分別豎向安裝在前后側的行走輪軌道上,且前后兩個相對應的懸掛式行走輪之間還安裝有可相對于懸掛式行走輪轉動的連桿;而前后側的連桿上還安裝有豎直向下伸出的懸掛拉板,所述的懸掛拉板伸入到行走輪軌道下方的導向輪軌道內并從導向輪軌道內伸出,所述的門板則安裝在懸掛拉板的下端部;且位于門板前側的懸掛拉板上還安裝有前側導向輪,位于門板后側的懸掛拉板上安裝有后側導向輪,且前后側的導向輪均橫向安裝在導向輪軌道內,且前后側的導向輪均與導向輪軌道之間存在間隙;所述的門板在驅動裝置的作用下左右移動時,門板上方的懸掛式行走輪和前后側導向輪分別在行走輪軌道和導向輪軌道內左右移動。
插板式調節風門具體實施方式
下面結合附圖和具體實施例,進一步闡明本實用新型,本實施例在以本實用新型技術方案為前提下進行實施,應理解這些實施例僅用于說明本實用新型而不用于限制本實用新型的范圍。
,一種插板式風門的可調式行走導向機構,包括門框1、安裝在門框1上的插板式門板2以及用于驅動門板左右關閉和開啟的驅動裝置 3,驅動裝置3驅動門板2向右側移動可關閉風門,所述的門板2的上方安裝有懸掛式行走導向機構;該懸掛式行走導向機構包括設置在門框1上的導向輪軌道 4、設置在導向軌道4上方的行走輪軌道5以及安裝在行走輪軌道5上的懸掛式行走輪6;所述的行走輪軌道5和導向軌道4均是前后設置有兩道從而構成整體軌道;而所述的懸掛式行走輪6則在門板2左右側各設置有一組,而每組懸掛式行走輪6各設置有兩個,前后兩個相對應的懸掛式行走輪6分別豎向安裝在前后側的行走輪軌道5上,且前后兩個相對應的懸掛式行走輪6之間還安裝有可相對于懸掛式行走輪6轉動的連桿7;而前后側的連桿7上還安裝有豎直向下伸出的懸掛拉板8,所述的懸掛拉板8伸入到行走輪軌道5下方的導向輪軌道4內并從導向輪軌道4內伸出,所述的門板2則安裝在懸掛拉板8的下端部;且位于門板 2前側的懸掛拉板8上還安裝有前側導向輪9,位于門板后側的懸掛拉板8上安裝有后側導向輪10,且前后側的導向輪均橫向安裝在導向輪軌道4 內,且前后側的導向輪均與導向輪軌道4之間存在間隙;所述的門板2在驅動裝置3的作用下左右移動時,門板上方的懸掛式行走輪6和前后側導向輪分別在行走輪軌道5 和導向輪軌道4內左右移動。
所述的門框1的下端同樣設置有導向輪軌道4,而門板2的前后端同樣通過懸掛拉板8設置有橫向安裝的前側導向輪9和后側導向輪10,且該前后側導向輪均安裝在下方的導向輪軌道4內,且該前后側導向輪與該導向輪軌道4之間滾在空隙。
所述的懸掛式行走輪6設置成凸臺形狀的行走輪結構,且所述的懸掛式行走輪6內還安裝有軸承套11,所述的連桿7通過軸承套11安裝在兩個相對應的懸掛式行走輪6的中心位置,使得連桿7在懸掛式行走輪6左右移動時不隨輪轂旋轉。
所述的連桿7上還安裝有框架12,而所述的門板2上方的懸掛拉板8的上端部向上伸出到框架12內,且在懸掛拉板8的上端部還安裝有前后走輪13,所述的前后走輪13與框架
12之間存在間隙。
所述的門板2與上下方的懸掛拉板8之間均安裝有橫向和豎向的調節桿101 和調節螺母102;通過調節桿101和調節螺母102以及上方安裝的前后走輪13 可調節門板2的上下位置和前后位置。
所述的門板2上方的前側導向輪9和后側導向輪10不設置在同一水平面上,為上下交錯設置;而門板2下方的前側導向輪9和后側導向輪10同樣不設置在同一水平面上,同樣設置為上下交錯設置;且所述的上下方的導向輪軌道4內還設置有上下兩道與上下導向輪位置相對應的凹槽,前后側導向輪均安裝在對應的凹槽內。
所述的門框1的上下方還均設置有粉塵清掃管14;所述的粉塵清掃管14與風門內的壓縮空氣相連,且上下方的粉塵清掃管分別對應上下方的導向輪軌道4 和上方的行走輪軌道5;所述的門框1與門板2之間還安裝有門座密封裝置15。
本實用新型中的風門結構采用懸掛式的裝置來支持門板的左右移動,最上部設置行走輪軌道,行走輪軌道下方設置導向輪軌道,上方的行走輪軌道內安裝懸掛式行走輪,再通過懸掛式行走輪之間連接安裝的連桿來安裝門板的前后側導向輪,這樣通過上方懸掛式行走輪的移動就可帶動上下方導向輪的移動,門板左右移動更加的舒暢,摩擦阻力大大減小,并將門板進行鎖緊時的硬摩擦轉變為滾動摩擦,增加系統運行的穩定性。
本實用新型中上下方的導向輪均與導向輪軌道之間設置有間隙,且本裝置還設置有橫向和豎向調節的調節桿和調節螺母,進行豎向調節時可以調節門板的上下位置,進行橫向調節的時候配合框架內的前后走輪可以很方便的調節門板的前后位置,并且通過前后走輪的配合,門板的前后位置調節更加的方便。
本實用新型中門板上下方的前側導向輪和后側導向輪并不在同一直線上行走,而是在兩條不重疊的軌道線上行走,導向輪軌道上設置與前后側導向輪形狀配合的用于放置前后側導向輪的凹槽,傳統設計把前后側導向輪設置在同一直線上,門板在行進或者后退過程中,前進或者后退方向的在先導向輪將會對應同一凹槽,在門板沒有到全開或全關位置時,前進或者后退方向的導向輪會進入同一凹槽,門板將對門座密封件造成沖擊,損壞密封件造成泄露;因此將前后導向輪錯位,并且將導軌上的凹槽也錯位設置,每個導向輪只對應一個凹槽,使得只有在門板全開位置或者全關位置,導向輪才能行進到對應的凹槽位置,完成全開或全關動作,徹底解決老式導向結構導致密封件損壞的問題。
本裝置中還設置有對應的粉塵清掃管,可對應的將導向輪軌道和行走輪軌道內的粉塵進行定點定時清掃,減小軌道卡澀的幾率;而且本裝置中還在懸掛式行走輪內設置軸承套,并且也可在導向輪內設置軸承套,該軸承套為高溫自潤滑軸承,較少摩擦,增加驅動器的利用效率,尤其在風門運行參數有增加時,同等驅動形式下,保證更穩定運行。